
Условное обозначение аппаратов теплообменных:
1200 ТКВ-1,6-М1/20Г-9-2-У-И
- • 1200 – диаметр кожуха, мм
- • Т – теплообменник (К – конденсатор, Х – холодильник, И – испаритель)
- • 1,6 – условное давление в трубах, МПа
- • М1 – материальное исполнение
- • 20Г – с гладкими теплообменными трубами диаметром 20 мм
- • 9 – длина трубного пучка, м
- • 2 – 2-х ходовой по трубному пространству
- • У – климатическое исполнение
- • И – с креплениями под изоляцию
Описание
ООО Чирчикмаш изготавливает аппараты теплообменные с неподвижными трубными решетками и с температурным компенсатором на кожухе. Данные аппараты нашли свое применение в технологических процессах газовой, нефтеперерабатывающей, нефтехимической, химической и нефтяной отраслях промышленности для теплообмена газовых и жидких сред.
Эксплуатация аппаратов возможна в районах с холодным, умеренным и тропическим климатом, а также в районах с сейсмичностью до 8 баллов по 12-ти бальной шкале.
Аппараты подразделяются:
- — по предназначению на Теплообменники (Т), Холодильники (Х), Конденсаторы (К), Испарители (И);
- — по расположению на вертикальные (ТНВ, ТКВ, ХНВ, ХКВ, КНВ, ККВ, ИНВ, ИКВ) и горизонтальные (ТНГ, ТКГ, ХНГ, ХКГ, КНГ, ККГ).
Испарители изготавливаются с двумя видами теплоносителей: с жидким или газообразным (ИН-1, ИК-1) или с паровым теплоносителем (ИН-2, ИК-2).
Основной охлаждающей средой в конденсаторах и холодильниках является вода или другая нетоксичная и не взрывопожароопасная жидкость.
В вертикальных конденсаторах и испарителях применяются только трубы с гладкими стенками.
| Диаметр | Ру, Мпа | Обозначение | Длина, мм | Масса, кг | |||||
| Труба 20х2 | Труба 25х2 | ||||||||
| 1 ход | 2 хода | 4 хода | 1 ход | 2 хода | 4 хода | ||||
| 159 | 1,6 | 159 ТКВ-1,6 159 ТКГ-1,6 159 ТНВ-1,6 159 ТНГ-1,6 | 1000 | 145 | — | — | 135 | — | — |
| 1500 | 170 | — | — | 165 | — | — | |||
| 2000 | 190 | — | — | 185 | — | — | |||
| 3000 | 245 | — | — | 235 | — | — | |||
| 4000 | — | — | — | — | — | — | |||
| 2,5 | 159 ТКВ-2,5 159 ТКГ-2,5 159 ТНВ-2,5 159 ТНГ-2,5 | 1000 | 175 | — | — | 170 | — | — | |
| 1500 | 200 | — | — | 190 | — | — | |||
| 2000 | 220 | — | — | 210 | — | — | |||
| 3000 | 275 | — | — | 255 | — | — | |||
| 4000 | — | — | — | — | — | — | |||
| 4,0 | 159 ТКВ-4,0 159 ТКГ-4,0 159 ТНВ-4,0 159 ТНГ-4,0 | 1000 | 175 | — | — | 170 | — | — | |
| 1500 | 200 | — | — | 190 | — | — | |||
| 2000 | 220 | — | — | 210 | — | — | |||
| 3000 | 275 | — | — | 255 | — | — | |||
| 4000 | — | — | — | — | — | — | |||
| 273 | 1,6 | 273 ТКВ-1,6 273 ТКГ-1,6 273 ТНВ-1,6 273 ТНГ-1,6 | 1000 | 295 | — | — | 275 | — | — |
| 1500 | 365 | — | — | 345 | — | — | |||
| 2000 | 435 | — | — | 410 | — | — | |||
| 3000 | 575 | — | — | 535 | — | — | |||
| 4000 | — | — | — | — | — | — | |||
| 2,5 | 273 ТКВ-2,5 273 ТКГ-2,5 273 ТНВ-2,5 273 ТНГ-2,5 | 1000 | 355 | — | — | 345 | — | — | |
| 1500 | 425 | — | — | 415 | — | — | |||
| 2000 | 495 | — | — | 475 | — | — | |||
| 3000 | 630 | — | — | 600 | — | — | |||
| 4000 | — | — | — | — | — | — | |||
| 4,0 | 273 ТКВ-4,0 273 ТКГ-4,0 273 ТНВ-4,0 273 ТНГ-4,0 | 1000 | 430 | — | — | 405 | — | — | |
| 1500 | 540 | — | — | 470 | — | — | |||
| 2000 | 575 | — | — | 535 | — | — | |||
| 3000 | 710 | — | — | 670 | — | — | |||
| 4000 | — | — | — | — | — | — | |||
| 325 | 1,6 | 325 ТКВ-1,6 325 ТКГ-1,6 325 ТНВ-1,6 325 ТНГ-1,6 | 1000 | — | — | — | — | — | — |
| 1500 | 465 | 440 | — | 435 | 415 | — | |||
| 2000 | 530 | 500 | — | 495 | 465 | — | |||
| 3000 | 665 | 620 | — | 610 | 575 | — | |||
| 4000 | 800 | 745 | — | 720 | 680 | — | |||
| 2,5 | 325 ТКВ-2,5 325 ТКГ-2,5 325 ТНВ-2,5 325 ТНГ-2,5 | 1000 | — | — | — | — | — | — | |
| 1500 | 540 | 510 | — | 510 | 480 | — | |||
| 2000 | 605 | 570 | — | 570 | 535 | — | |||
| 3000 | 740 | 700 | — | 690 | 645 | — | |||
| 4000 | 900 | 820 | — | 820 | 750 | — | |||
| 4,0 | 325 ТКВ-4,0 325 ТКГ-4,0 325 ТНВ-4,0 325 ТНГ-4,0 | 1000 | — | — | — | — | — | — | |
| 1500 | 650 | 605 | — | 565 | 575 | — | |||
| 2000 | 720 | 660 | — | 680 | 625 | — | |||
| 3000 | 880 | 810 | — | 800 | 730 | — | |||
| 4000 | 990 | 950 | — | 910 | 900 | — | |||
| 426 (400) | 1,6 | 400 ТКВ-1,6 400 ТКГ-1,6 400 ТНВ-1,6 400 ТНГ-1,6 | 2000 | 860 | 860 | — | 780 | 790 | — |
| 3000 | 1130 | 1130 | — | 1030 | 1020 | — | |||
| 4000 | 1430 | 1360 | — | 1290 | 1340 | — | |||
| 6000 | 1850 | 1930 | — | 1750 | 1660 | — | |||
| 9000 | — | — | — | — | — | — | |||
| 2,5 | 400 ТКВ-2,5 400 ТКГ-2,5 400 ТНВ-2,5 400 ТНГ-2,5 | 2000 | 980 | 1020 | — | 870 | 960 | — | |
| 3000 | 1230 | 1250 | — | 1140 | 1180 | — | |||
| 4000 | 1540 | 1490 | — | 1400 | 1380 | — | |||
| 6000 | 1960 | 2020 | — | 1860 | 1860 | — | |||
| 9000 | — | — | — | — | — | — | |||
| 4,0 | 400 ТКВ-4,0 400 ТКГ-4,0 400 ТНВ-4,0 400 ТНГ-4,0 | 2000 | 1090 | 1150 | — | 1030 | 1080 | — | |
| 3000 | 1290 | 1470 | — | 1200 | 1350 | — | |||
| 4000 | 1780 | 1660 | — | 1480 | 1510 | — | |||
| 6000 | 2120 | 2240 | — | 1940 | 2130 | — | |||
| 9000 | — | — | — | — | — | — | |||
| 630 (600) | 1,6 | 600 ТКВ-1,6 600 ТКГ-1,6 600 ТНВ-1,6 600 ТНГ-1,6 | 2000 | 1570 | 1520 | 1530 | 1360 | 1350 | 1360 |
| 3000 | 2030 | 1920 | 1880 | 1840 | 1820 | 1780 | |||
| 4000 | 2540 | 2350 | 2280 | 2450 | 2190 | 2130 | |||
| 6000 | 3540 | 3470 | 3320 | 3190 | 2910 | 2760 | |||
| 9000 | — | — | — | — | — | — | |||
| 2,5 | 600 ТКВ-2,5 600 ТКГ-2,5 600 ТНВ-2,5 600 ТНГ-2,5 | 2000 | 1710 | 1870 | 1880 | 1550 | 1710 | 1720 | |
| 3000 | 2250 | 2400 | 2360 | 2020 | 2190 | 2150 | |||
| 4000 | 2760 | 2920 | 2850 | 2560 | 2640 | 2580 | |||
| 6000 | 3840 | 3980 | 3830 | 3480 | 3550 | 3400 | |||
| 9000 | — | — | — | — | — | — | |||
| 4,0 | 600 ТКВ-4,0 600 ТКГ-4,0 600 ТНВ-4,0 600 ТНГ-4,0 | 2000 | 2100 | 2430 | 2440 | 1970 | 2290 | 2300 | |
| 3000 | 2670 | 3000 | 2960 | 2470 | 2800 | 2760 | |||
| 4000 | 3530 | 3560 | 3490 | 3390 | 3280 | 3220 | |||
| 6000 | 4380 | 4690 | 4540 | 3950 | 4270 | 4120 | |||
| 9000 | — | — | — | — | — | — | |||
| 800 | 1,0 | 800 ТКВ-1,0 800 ТКГ-1,0 800 ТНВ-1,0 800 ТНГ-1,0 | 2000 | 2640 | 2680 | 2740 | 2300 | 2520 | 2560 |
| 3000 | 3570 | 3510 | 3510 | 3160 | 3240 | 3260 | |||
| 4000 | 4310 | 4350 | 4320 | 3760 | 3960 | 3930 | |||
| 6000 | 6040 | 6040 | 5920 | 5420 | 5380 | 5260 | |||
| 9000 | — | — | — | — | — | — | |||
| 1,6 | 800 ТКВ-1,6 800 ТКГ-1,6 800 ТНВ-1,6 800 ТНГ-1,6 | 2000 | 2780 | 2880 | 2940 | 2320 | 2720 | 2790 | |
| 3000 | 3640 | 3760 | 3790 | 3280 | 3450 | 3470 | |||
| 4000 | 4560 | 4650 | 4620 | 4040 | 4180 | 4150 | |||
| 6000 | 6340 | 6340 | 6190 | 5460 | 5620 | 5500 | |||
| 9000 | — | — | — | — | — | — | |||
| 2,5 | 800 ТКВ-2,5 800 ТКГ-2,5 800 ТНВ-2,5 800 ТНГ-2,5 | 2000 | 3190 | 3180 | 3240 | 2920 | 2870 | 2940 | |
| 3000 | 4150 | 4160 | 4160 | 3730 | 3680 | 3700 | |||
| 4000 | 5110 | 5100 | 5070 | 4570 | 4500 | 4470 | |||
| 6000 | 7040 | 7000 | 6880 | 6350 | 6120 | 6000 | |||
| 9000 | — | — | — | — | — | — | |||
| 4,0 | 800 ТКВ-4,0 800 ТКГ-4,0 800 ТНВ-4,0 800 ТНГ-4,0 | 2000 | 3930 | 4160 | 4220 | 3660 | 4080 | 4150 | |
| 3000 | 4970 | 5110 | 5140 | 4600 | 4740 | 4760 | |||
| 4000 | 6020 | 6070 | 6040 | 5470 | 5690 | 5660 | |||
| 6000 | 8110 | 8010 | 7890 | 7070 | 7340 | 7220 | |||
| 9000 | — | — | — | — | — | — | |||
| 1000 | 0,6 | 1000 ТКВ-0,6 1000 ТКГ-0,6 1000 ТНВ-0,6 1000 ТНГ-0,6 | 2000 | — | — | — | — | — | — |
| 3000 | 5020 | 5050 | 5070 | 4410 | 4480 | 4520 | |||
| 4000 | 6490 | 6290 | 6250 | 5460 | 5590 | 5570 | |||
| 6000 | 9000 | 8770 | 8640 | 7870 | 7810 | 7670 | |||
| 9000 | 12980 | 12920 | 12610 | 11250 | 11150 | 107830 | |||
| 1,0 | 1000 ТКВ-1,0 1000 ТКГ-1,0 1000 ТНВ-1,0 1000 ТНГ-1,0 | 2000 | — | — | — | — | — | — | |
| 3000 | 5220 | 5230 | 5250 | 4540 | 4580 | 4620 | |||
| 4000 | 6560 | 6540 | 6500 | 5770 | 5710 | 5690 | |||
| 6000 | 9210 | 9180 | 9050 | 7970 | 7970 | 7830 | |||
| 9000 | 13180 | 13120 | 12810 | 11400 | 11350 | 11030 | |||
| 1,6 | 1000 ТКВ-1,6 1000 ТКГ-1,6 1000 ТНВ-1,6 1000 ТНГ-1,6 | 2000 | — | — | — | — | — | — | |
| 3000 | 5600 | 5520 | 55400 | 4890 | 4930 | 4970 | |||
| 4000 | 6790 | 6900 | 6860 | 6160 | 6110 | 6090 | |||
| 6000 | 9870 | 9660 | 9530 | 8370 | 8370 | 8230 | |||
| 9000 | 13750 | 13690 | 13380 | 12050 | 11050 | 11630 | |||
| 2,5 | 1000 ТКВ-2,5 1000 ТКГ-2,5 1000 ТНВ-2,5 1000 ТНГ-2,5 | 2000 | — | — | — | — | — | — | |
| 3000 | 6100 | 6170 | 6390 | 5510 | 5430 | 5470 | |||
| 4000 | 7570 | 7580 | 7540 | 6790 | 6800 | 6780 | |||
| 6000 | 10530 | 10390 | 10260 | 9270 | 9120 | 8980 | |||
| 9000 | 15180 | 15120 | 14810 | 13350 | 13200 | 12880 | |||
| 4,0 | 1000 ТКВ-4,0 1000 ТКГ-4,0 1000 ТНВ-4,0 1000 ТНГ-4,0 | 2000 | — | — | — | — | — | — | |
| 3000 | 7110 | 7710 | 7910 | 6780 | 7750 | 7450 | |||
| 4000 | 8940 | 9270 | 9490 | 8190 | 8950 | 8780 | |||
| 6000 | 12180 | 12380 | 12600 | 11010 | 11650 | 11440 | |||
| 9000 | — | — | — | — | — | — | |||
| 1200 | 0,6 | 1200 ТКВ-0,6 1200 ТКГ-0,6 1200 ТНВ-0,6 1200 ТНГ-0,6 | 2000 | — | — | — | — | — | — |
| 3000 | — | — | — | — | — | — | |||
| 4000 | 8930 | 9030 | 9090 | 7910 | 8000 | 8040 | |||
| 6000 | 12760 | 12750 | 12660 | 11190 | 11120 | 11020 | |||
| 9000 | 18560 | 18560 | 18280 | 16080 | 15850 | 15530 | |||
| 1,0 | 1200 ТКВ-1,0 1200 ТКГ-1,0 1200 ТНВ-1,0 1200 ТНГ-1,0 | 2000 | — | — | — | — | — | — | |
| 3000 | — | — | — | — | — | — | |||
| 4000 | 9180 | 9650 | 9710 | 8210 | 8350 | 8390 | |||
| 6000 | 12910 | 13360 | 13290 | 11360 | 11500 | 11400 | |||
| 9000 | 18970 | 19170 | 18890 | 16280 | 16250 | 15930 | |||
| 1,6 | 1200 ТКВ-1,6 1200 ТКГ-1,6 1200 ТНВ-1,6 1200 ТНГ-1,6 | 2000 | — | — | — | — | — | — | |
| 3000 | — | — | — | — | — | — | |||
| 4000 | 9310 | 9680 | 9740 | 8460 | 8600 | 8640 | |||
| 6000 | 13100 | 13470 | 13390 | 11780 | 11770 | 11670 | |||
| 9000 | 19360 | 19310 | 19030 | 16730 | 16600 | 16280 | |||
| 2,5 | 1200 ТКВ-2,5 1200 ТКГ-2,5 1200 ТНВ-2,5 1200 ТНГ-2,5 | 2000 | — | — | — | — | — | — | |
| 3000 | — | — | — | — | — | — | |||
| 4000 | 11030 | 11450 | 11510 | 9910 | 10100 | 10140 | |||
| 6000 | 15220 | 14800 | 14720 | 13590 | 13670 | 13570 | |||
| 9000 | 21890 | 21860 | 21580 | 19180 | 19100 | 18780 | |||
Табл.2 Основные технические характеристики холодильников
| Диаметр | Ру, Мпа | Обозначение | Длина, мм | Масса, кг | |||||
| Труба 25х2 | |||||||||
| 1 ход | 2 хода | 4 хода | |||||||
| сталь | латунь | сталь | латунь | сталь | латунь | ||||
| 159 | 1,6 | 159 ХКВ-1,6 159 ХКГ-1,6 159 ХНВ-1,6 159 ХНГ-1,6 | 1500 | см. табл.1 | 200 | — | — | — | — |
| 2000 | см. табл.1 | 220 | — | — | — | — | |||
| 3000 | см. табл.1 | 280 | — | — | — | — | |||
| 273 | 1,6 | 273 ХКВ-1,6 273 ХКГ-1,6 273 ХНВ-1,6 273 ХНГ-1,6 | 1500 | см. табл.1 | 380 | — | — | — | — |
| 2000 | см. табл.1 | 450 | — | — | — | — | |||
| 3000 | см. табл.1 | 580 | — | — | — | — | |||
| 325 | 1,6 | 325 ХКВ-1,6 325 ХКГ-1,6 325 ХНВ-1,6 325 ХНГ-1,6 | 1500 | см. табл.1 | — | см. табл.1 | 470 | — | — |
| 2000 | см. табл.1 | — | см. табл.1 | 530 | — | — | |||
| 3000 | см. табл.1 | — | см. табл.1 | 670 | — | — | |||
| 4000 | см. табл.1 | — | см. табл.1 | 810 | — | — | |||
| 400 (426) | 1,6 | 400 ХКВ-1,6 400 ХКГ-1,6 400 ХНВ-1,6 400 ХНГ-1,6 | 2000 | см. табл.1 | — | см. табл.1 | 860 | — | — |
| 3000 | см. табл.1 | — | см. табл.1 | 1080 | — | — | |||
| 4000 | см. табл.1 | — | см. табл.1 | 1340 | — | — | |||
| 6000 | см. табл.1 | — | см. табл.1 | 1780 | — | — | |||
| 600 (630) | 1,0 | 600 ХКВ-1,0 600 ХКГ-1,0 600 ХНВ-1,0 600 ХНГ-1,0 | 2000 | — | — | 1490 | 1550 | 1480 | 1540 |
| 3000 | — | — | 1910 | 1990 | 1870 | 1930 | |||
| 4000 | — | — | 2310 | 2420 | 2230 | 2320 | |||
| 6000 | — | — | 3170 | 3350 | 3010 | 3170 | |||
| 1,6 | 600 ХКВ-1,6 600 ХКГ-1,6 600 ХНВ-1,6 600 ХНГ-1,6 | 2000 | — | — | 1580 | 1640 | 1570 | 1630 | |
| 3000 | — | — | 2030 | 2110 | 1990 | 2050 | |||
| 4000 | — | — | 2440 | 2550 | 2360 | 2450 | |||
| 6000 | — | — | 3300 | 3420 | 3140 | 3240 | |||
| 2,5 | 600 ХКВ-2,5 600 ХКГ-2,5 600 ХНВ-2,5 600 ХНГ-2,5 | 2000 | — | — | 1610 | — | 1600 | — | |
| 3000 | — | — | 2170 | — | 2130 | — | |||
| 4000 | — | — | 2680 | — | 2600 | — | |||
| 6000 | — | — | 3540 | — | 3380 | — | |||
| 4,0 | 600 ХКВ-4,0 600 ХКГ-4,0 600 ХНВ-4,0 600 ХНГ-4,0 | 2000 | — | — | 1960 | — | 1950 | — | |
| 3000 | — | — | 2520 | — | 2480 | — | |||
| 4000 | — | — | 2930 | — | 2850 | — | |||
| 6000 | — | — | 3900 | — | 3740 | — | |||
| 800 | 1,0 | 800 ХКВ-1,0 800 ХКГ-1,0 800 ХНВ-1,0 800 ХНГ-1,0 | 2000 | — | — | 2540 | 2580 | 2620 | 2630 |
| 3000 | — | — | 3270 | 3480 | 3310 | 3500 | |||
| 4000 | — | — | 4000 | 4130 | 3990 | 4100 | |||
| 6000 | — | — | 5430 | 5530 | 5330 | 5400 | |||
| 1,6 | 800 ХКВ-1,6 800 ХКГ-1,6 800 ХНВ-1,6 800 ХНГ-1,6 | 2000 | — | — | 2720 | 2820 | 2800 | 2890 | |
| 3000 | — | — | 3520 | 3590 | 3560 | 3610 | |||
| 4000 | — | — | 4200 | 4290 | 4190 | 4260 | |||
| 6000 | — | — | 5890 | 5980 | 5790 | 5850 | |||
| 2,5 | 800 ХКВ-2,5 800 ХКГ-2,5 800 ХНВ-2,5 800 ХНГ-2,5 | 2000 | — | — | 3000 | — | 3080 | — | |
| 3000 | — | — | 3640 | — | 3680 | — | |||
| 4000 | — | — | 4450 | — | 4440 | — | |||
| 6000 | — | — | 6160 | — | 6060 | — | |||
| 4,0 | 800 ХКВ-4,0 800 ХКГ-4,0 800 ХНВ-4,0 800 ХНГ-4,0 | 2000 | — | — | 3420 | — | 3500 | — | |
| 3000 | — | — | 4240 | — | 4280 | — | |||
| 4000 | — | — | 5100 | — | 5090 | — | |||
| 6000 | — | — | 6720 | — | 6620 | -8120 | |||
| 1000 | 0,6 | 1000 ХКВ-0,6 1000 ХКГ-0,6 1000 ХНВ-0,6 1000 ХНГ-0,6 | 3000 | — | — | 4630 | 5040 | 4650 | 5050 |
| 4000 | — | — | 5760 | 6210 | 5730 | 6210 | |||
| 6000 | — | — | 8020 | 8560 | 7870 | 8370 | |||
| 9000 | — | — | 11400 | 12100 | 11070 | 11720 | |||
| 1,0 | 1000 ХКВ-1,0 1000 ХКГ-1,0 1000 ХНВ-1,0 1000 ХНГ-1,0 | 3000 | — | — | 4780 | 5140 | 4880 | 5150 | |
| 4000 | — | — | 5910 | 6330 | 5880 | 6330 | |||
| 6000 | — | — | 8120 | 8720 | 7970 | 8530 | |||
| 9000 | — | — | 11500 | 12300 | 11170 | 11920 | |||
| 1,6 | 1000 ХКВ-1,6 1000 ХКГ-1,6 1000 ХНВ-1,6 1000 ХНГ-1,6 | 3000 | — | — | 4970 | 5310 | 4990 | 5320 | |
| 4000 | — | — | 6140 | 6590 | 6110 | 6390 | |||
| 6000 | — | — | 8370 | 9060 | 8220 | 8870 | |||
| 9000 | — | — | 11900 | 12800 | 11570 | 12220 | |||
| 2,5 | 1000 ХКВ-2,5 1000 ХКГ-2,5 1000 ХНВ-2,5 1000 ХНГ-2,5 | 3000 | — | — | 5280 | — | 5300 | — | |
| 4000 | — | — | 6490 | — | 6460 | — | |||
| 6000 | — | — | 8870 | — | 8720 | — | |||
| 9000 | — | — | 12500 | — | 12170 | — | |||
| 4,0 | 1000 ХКВ-4,0 1000 ХКГ-4,0 1000 ХНВ-4,0 1000 ХНГ-4,0 | 3000 | — | — | 5780 | — | 5800 | — | |
| 4000 | — | — | 7060 | — | 7030 | — | |||
| 6000 | — | — | 9650 | — | 9500 | — | |||
| 9000 | — | — | — | — | — | — | |||
| 1200 | 0,6 | 1200 ХКВ-0,6 1200 ХКГ-0,6 1200 ХНВ-0,6 1200 ХНГ-0,6 | 3000 | — | — | — | — | — | — |
| 4000 | — | — | 8400 | 9130 | 8430 | 9130 | |||
| 6000 | — | — | 11610 | 12430 | 11500 | 12280 | |||
| 9000 | — | — | 16500 | 17400 | 16180 | 17020 | |||
| 1,0 | 1200 ХКВ-1,0 1200 ХКГ-1,0 1200 ХНВ-1,0 1200 ХНГ-1,0 | 3000 | — | — | — | — | — | — | |
| 4000 | — | — | 8500 | 9300 | 8530 | 9300 | |||
| 6000 | — | — | 11710 | 12680 | 11600 | 12530 | |||
| 9000 | — | — | 16600 | 17750 | 16280 | 17370 | |||
| 1,6 | 1200 ХКВ-1,6 1200 ХКГ-1,6 1200 ХНВ-1,6 1200 ХНГ-1,6 | 3000 | — | — | — | — | — | — | |
| 4000 | — | — | 9000 | 9640 | 9030 | 9670 | |||
| 6000 | — | — | 12210 | 13040 | 12100 | 12890 | |||
| 9000 | — | — | 17100 | 18150 | 16780 | 17770 | |||
| 2,5 | 1200 ХКВ-2,5 1200 ХКГ-2,5 1200 ХНВ-2,5 1200 ХНГ-2,5 | 3000 | — | — | — | — | — | — | |
| 4000 | — | — | 9800 | 9830 | — | — | |||
| 6000 | — | — | 13170 | 13060 | — | — | |||
| 9000 | — | — | 18300 | 17980 | — | — | |||
| 4,0 | 1200 ХКВ-4,0 1200 ХКГ-4,0 1200 ХНВ-4,0 1200 ХНГ-4,0 | 3000 | — | — | — | — | — | — | |
| 4000 | — | — | — | — | — | — | |||
| 6000 | — | — | — | — | — | — | |||
| 9000 | — | — | — | — | — | — | |||
Табл.3 Основные технические характеристики конденсаторов
| Диаметр | Ру, Мпа | Обозначение | Длина, мм | Масса, кг | |||||
| Труба 25х2 | |||||||||
| 2 хода | 4 хода | 6 ходов | |||||||
| сталь | латунь | сталь | латунь | сталь | латунь | ||||
| 600 (630) | 1,0 | 600 ККВ-1,0 600 ККГ-1,0 600 КНВ-1,0 600 КНГ-1,0 | 3000 | 1760 | 1800 | 1720 | 1740 | 1760 | 1780 |
| 4000 | 2200 | 2200 | 2120 | 2100 | 2140 | 2120 | |||
| 6000 | 2900 | 3000 | 2730 | 2810 | 2730 | 2810 | |||
| 1,6 | 600 ККВ-1,6 600 ККГ-1,6 600 КНВ-1,6 600 КНГ-1,6 | 3000 | 1840 | 1900 | 1800 | 1850 | 1840 | 1890 | |
| 4000 | 2240 | 2310 | 2160 | 2210 | 2190 | 2230 | |||
| 6000 | 3040 | 3130 | 2880 | 2950 | 2840 | 2950 | |||
| 2,5 | 600 ККВ-2,5 600 ККГ-2,5 600 КНВ-2,5 600 КНГ-2,5 | 3000 | 2030 | — | 1970 | — | 2010 | — | |
| 4000 | 2440 | — | 2360 | — | 2390 | — | |||
| 6000 | 3270 | — | 3110 | — | 3110 | — | |||
| 800 | 1,0 | 800 ККВ-1,0 800 ККГ-1,0 800 КНВ-1,0 800 КНГ-1,0 | 3000 | 3200 | 3220 | 3180 | 3180 | 3250 | 3250 |
| 4000 | 3900 | 3920 | 3820 | 3830 | 3880 | 3880 | |||
| 6000 | 5170 | 5320 | 5010 | 5130 | 5040 | 5150 | |||
| 1,6 | 800 ККВ-1,6 800 ККГ-1,6 800 КНВ-1,6 800 КНГ-1,6 | 3000 | 3490 | 3640 | 3420 | 3620 | 3490 | 3690 | |
| 4000 | 4100 | 4220 | 4030 | 4130 | 4090 | 4180 | |||
| 6000 | 5670 | 5720 | 5510 | 5540 | 5540 | 5560 | |||
| 2,5 | 800 ККВ-2,5 800 ККГ-2,5 800 КНВ-2,5 800 КНГ-2,5 | 3000 | 3660 | — | 3640 | — | 3710 | — | |
| 4000 | 4460 | — | 4390 | — | 4450 | — | |||
| 6000 | 5930 | — | 5770 | — | 5450 | — | |||
| 1000 | 0,6 | 1000 ККВ-0,6 1000 ККГ-0,6 1000 КНВ-0,6 1000 КНГ-1,0 | 3000 | 4600 | 4760 | 4610 | 4750 | 4720 | 4850 |
| 4000 | 5700 | 5900 | 5660 | 5830 | 5700 | 5900 | |||
| 6000 | 7890 | 8200 | 7720 | 8000 | 7750 | 8010 | |||
| 1,0 | 1000 ККВ-1,0 1000 ККГ-1,0 1000 КНВ-1,0 1000 КНГ-1,0 | 3000 | 4750 | 4820 | 4760 | 4810 | 4870 | 4910 | |
| 4000 | 5830 | 5980 | 5790 | 5910 | 5850 | 5980 | |||
| 6000 | 7950 | 8310 | 7780 | 8110 | 7810 | 8120 | |||
| 1,6 | 1000 ККВ-1,6 1000 ККГ-1,6 1000 КНВ-1,6 1000 КНГ-1,6 | 3000 | 5080 | 5270 | 5090 | 5260 | 5200 | 5360 | |
| 4000 | 6240 | 6460 | 6200 | 6390 | 6260 | 6460 | |||
| 6000 | 8570 | 8850 | 8400 | 8650 | 8430 | 8660 | |||
| 2,5 | 1000 ККВ-2,5 1000 ККГ-2,5 1000 КНВ-2,5 1000 КНГ-2,5 | 3000 | 5380 | — | 5390 | — | 5500 | — | |
| 4000 | 6570 | — | 6530 | — | 6680 | — | |||
| 6000 | 8920 | — | 8750 | — | 8780 | — | |||
| 1200 | 0,6 | 1200 ККВ-0,6 1200 ККГ-0,6 1200 КНВ-0,6 1200 КНГ-1,0 | 3000 | — | — | — | — | — | — |
| 4000 | 8200 | 8900 | 8240 | 8980 | 8440 | 9170 | |||
| 6000 | 10950 | 12070 | 10850 | 11930 | 11000 | 12060 | |||
| 1,0 | 1200 ККВ-1,0 1200 ККГ-1,0 1200 КНВ-1,0 1200 КНГ-1,0 | 3000 | — | — | — | — | — | — | |
| 4000 | 8500 | 9270 | 8540 | 9270 | 8740 | 9460 | |||
| 6000 | 11380 | 12150 | 11280 | 12010 | 11430 | 12140 | |||
| 1,6 | 1200 ККВ-1,6 1200 ККГ-1,6 1200 КНВ-1,6 1200 КНГ-1,6 | 3000 | — | — | — | — | — | — | |
| 4000 | 8930 | 9800 | 8970 | 9700 | 9170 | 9890 | |||
| 6000 | 11770 | 12720 | 11520 | 12410 | 11670 | 12540 | |||
| 2,5 | 1200 ККВ-2,5 1200 ККГ-2,5 1200 КНВ-2,5 1200 КНГ-2,5 | 3000 | — | — | — | — | — | — | |
| 4000 | 10040 | 12870 | 10080 | 12620 | 10280 | 12770 | |||
| 6000 | — | — | — | — | — | — | |||
| 1400 | 0,6 | 1400 ККВ-0,6 1400 ККГ-0,6 1400 КНВ-0,6 1400 КНГ-1,0 | 3000 | — | — | — | — | — | — |
| 4000 | — | — | — | — | — | — | |||
| 6000 | 15940 | 16520 | 15870 | 16400 | 16100 | 16610 | |||
| 1,0 | 1400 ККВ-1,0 1400 ККГ-1,0 1400 КНВ-1,0 1400 КНГ-1,0 | 3000 | — | — | — | — | — | — | |
| 4000 | — | — | — | — | — | — | |||
| 6000 | 16260 | 16800 | 15760 | 16680 | 16420 | 16890 | |||
| 1,6 | 1400 ККВ-1,6 1400 ККГ-1,6 1400 КНВ-1,6 1400 КНГ-1,6 | 3000 | — | — | — | — | — | — | |
| 4000 | — | — | — | — | — | — | |||
| 6000 | 16830 | 17360 | 16760 | 17240 | 16990 | 17450 | |||
| 2,5 | 1400 ККВ-2,5 1400 ККГ-2,5 1400 КНВ-2,5 1400 КНГ-2,5 | 3000 | — | — | — | — | — | — | |
| 4000 | — | — | — | — | — | — | |||
| 6000 | 17630 | — | 17560 | — | — | — | |||
Табл.4 Основные технические характеристики испарителей
| Диаметр | Ру, Мпа | Обозначение | Длина, мм | Масса, кг | |
| Труба 25х2 | |||||
| 1 исполнение | 2 исполнение | ||||
| 600 (630) | 1,0 | 600 ИН-1-1,0 600 ИН-2-1,0 600 ИК-1-1,0 600 ИК-2-1,0 | 2000 | 1350 | 1330 |
| 3000 | 1780 | 1750 | |||
| 4000 | 2210 | 2170 | |||
| 1,6 | 600 ИН-1-1,6 600 ИН-2-1,6 600 ИК-1-1,6 600 ИК-2-1,6 | 2000 | 1410 | ||
| 3000 | 1810 | ||||
| 4000 | 2230 | ||||
| 2,5 | 600 ИН-1-2,5 600 ИН-2-2,5 600 ИК-1-2,5 600 ИК-2-2,5 | 2000 | 1520 | ||
| 3000 | 1990 | ||||
| 4000 | 2570 | ||||
| 4,0 | 600 ИН-1-4,0 600 ИН-2-4,0 600 ИК-1-4,0 600 ИК-2-4,0 | 2000 | 1840 | ||
| 3000 | 2340 | ||||
| 4000 | 2930 | ||||
| 800 | 1,0 | 800 ИН-1-1,0 800 ИН-2-1,0 800 ИК-1-1,0 800 ИК-2-1,0 | 2000 | 2320 | 2290 |
| 3000 | 3230 | 3190 | |||
| 4000 | 3700 | 3650 | |||
| 1,6 | 800 ИН-1-1,6 800 ИН-2-1,6 800 ИК-1-1,6 800 ИК-2-1,6 | 2000 | 2420 | ||
| 3000 | 3380 | ||||
| 4000 | 3880 | ||||
| 2,5 | 800 ИН-1-2,5 800 ИН-2-2,5 800 ИК-1-2,5 800 ИК-2-2,5 | 2000 | 2720 | ||
| 3000 | 3530 | ||||
| 4000 | 4340 | ||||
| 4,0 | 800 ИН-1-4,0 800 ИН-2-4,0 800 ИК-1-4,0 800 ИК-2-4,0 | 2000 | 3170 | ||
| 3000 | 4130 | ||||
| 4000 | 5100 | ||||
| 1000 | 0,6 | 1000 ИН-1-0,6 1000 ИН-2-0,6 1000 ИК-1-0,6 1000 ИК-2-0,6 | 2000 | 3460 | 3420 |
| 3000 | 4640 | 4590 | |||
| 4000 | 5810 | 5740 | |||
| 1,0 | 1000 ИН-1-1,0 1000 ИН-2-1,0 1000 ИК-1-1,0 1000 ИК-2-1,0 | 2000 | 3610 | 3530 | |
| 3000 | 4770 | 4720 | |||
| 4000 | 5920 | 5850 | |||
| 1,6 | 1000 ИН-1-1,6 1000 ИН-2-1,6 1000 ИК-1-1,6 1000 ИК-2-1,6 | 2000 | 3710 | ||
| 3000 | 4840 | ||||
| 4000 | 5960 | ||||
| 2,5 | 1000 ИН-1-2,5 1000 ИН-2-2,5 1000 ИК-1-2,5 1000 ИК-2-2,5 | 2000 | 3860 | ||
| 3000 | 5240 | ||||
| 4000 | 6410 | ||||
| 4,0 | 1000 ИН-1-4,0 1000 ИН-2-4,0 1000 ИК-1-4,0 1000 ИК-2-4,0 | 2000 | 4980 | ||
| 3000 | 6090 | ||||
| 4000 | 7450 | ||||
| 1200 | 0,6 | 1200 ИН-1-0,6 1200 ИН-2-0,6 1200 ИК-1-0,6 1200 ИК-2-0,6 | 2000 | — | — |
| 3000 | 6560 | 6490 | |||
| 4000 | 8100 | 8010 | |||
| 1,0 | 1200 ИН-1-1,0 1200 ИН-2-1,0 1200 ИК-1-1,0 1200 ИК-2-1,0 | 2000 | — | — | |
| 3000 | 6610 | 6540 | |||
| 4000 | 8300 | 8210 | |||
| 1,6 | 1200 ИН-1-1,6 1200 ИН-2-1,6 1200 ИК-1-1,6 1200 ИК-2-1,6 | 2000 | — | ||
| 3000 | 6860 | ||||
| 4000 | 8500 | ||||
| 2,5 | 1200 ИН-1-2,5 1200 ИН-2-2,5 1200 ИК-1-2,5 1200 ИК-2-2,5 | 2000 | — | ||
| 3000 | 7410 | ||||
| 4000 | 9050 | ||||
| 1400 | 0,6 | 1400 ИН-1-0,6 1400 ИН-2-0,6 1400 ИК-1-0,6 1400 ИК-2-0,6 | 2000 | — | |
| 3000 | 8500 | ||||
| 4000 | 10500 | ||||
| 1,0 | 1400 ИН-1-1,0 1400 ИН-2-1,0 1400 ИК-1-1,0 1400 ИК-2-1,0 | 2000 | — | ||
| 3000 | 8630 | ||||
| 4000 | 10680 | ||||
| 1,6 | 1400 ИН-1-1,6 1400 ИН-2-1,6 1400 ИК-1-1,6 1400 ИК-2-1,6 | 2000 | — | ||
| 3000 | 9340 | ||||
| 4000 | 11450 | ||||
| 2,5 | 1400 ИН-1-2,5 1400 ИН-2-2,5 1400 ИК-1-2,5 1400 ИК-2-2,5 | 2000 | — | ||
| 3000 | 11200 | ||||
| 4000 | 13200 | ||||
Табл.5 Материалы, применяемые для изготовления теплообменных аппаратов
| Материальное исполнение | Материал | ||||
| кожуха | распредели-тельной камеры и крышек | теплообмен-ных труб | трубной решетки | перегородки | |
| М1 | Ст3сп | Ст3сп | Сталь 20 | 16ГС | Ст3сп |
| М3 | Латунь | 16ГС с наплавлением латуни | Ст3сп | ||
| М8 | 12Х18Н10Т | 12Х18Н10Т | 12Х18Н10Т | 12Х18Н10Т | 12Х18Н10Т |
| М9 | 10Х17Н13М2Т | 10Х17Н13М2Т | 10Х17Н13М2Т | 10Х17Н13М2Т | 10Х17Н13М2Т |
| М10 | 12Х18Н10Т | Ст3сп | 12Х18Н10Т | 12Х18Н10Т | 12Х18Н10Т |
| М11 | 10Х17Н13М2Т | 10Х17Н13М2Т | 10Х17Н13М2Т | 10Х17Н13М2Т | |
| М12 | Ст3сп | Ст3сп | 12Х18Н10Т | 16ГС | Ст3сп |
| М17 | 09Г2С | 09Г2С | 09Г2С | 09Г2С | |
| М19 | 08Х22Н6Т | Ст3сп | 08Х22Н6Т | 08Х22Н6Т | 08Х22Н6Т |
| М20 | 08Х21Н6М2Т | Ст3сп | 08Х21Н6М2Т | 08Х21Н6М2Т | 08Х21Н6М2Т |
| М21 | 08Х22Н6Т | 08Х22Н6Т | 08Х22Н6Т | 08Х22Н6Т | 08Х22Н6Т |
| М22 | 08Х21Н6М2Т | 08Х21Н6М2Т | 08Х21Н6М2Т | 08Х21Н6М2Т | 08Х21Н6М2Т |
| М23 | Ст3сп | 08Х22Н6Т | 08Х22Н6Т | 08Х22Н6Т | Ст3сп |
| М24 | 08Х21Н6М2Т | 08Х21Н6М2Т | 08Х21Н6М2Т | ||
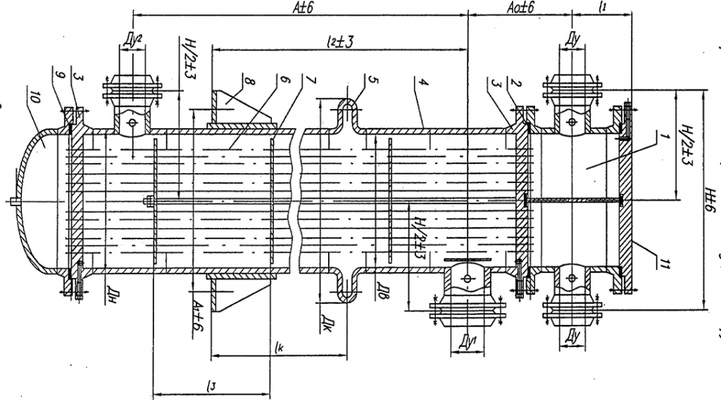
Рис.1 Эскиз теплообменника (ТКВ)

Рис.2 Эскиз холодильника (ХКГ)

Рис.3 Эскиз конденсатора (ККВ)

Рис.4 Эскиз испарителя (ИК)

ЦЕНА ПО ЗАПРОСУ
